Cancelada

Te koop Herenhuis Costa Del Sol Cancelada € 585.000,-

Ref.no: RSOR5225539
Price: € 585.000,-

1-7980e48d732b6fc85c14b43b94d2aa54.jpg

Te koop Herenhuis Costa Del Sol Cancelada € 585.000,-

Bedrooms4
Salles de bains3
Superficie du terrain182m²
Poolno
Gardenno
Parkingno
Built year2020
Ref.no: RSOR5225539
Price: € 585.000,-

Plus d'information ›››
Te koop Herenhuis Costa Del Sol Cancelada € 585.000,-

Contemporary Townhouse with Exceptional Facilities in Cancelada

Situated in one of Cancelada’s most modern gated communities, this stylish townhouse offers a refined blend of comfort, design, and lifestyle. Set against a backdrop of panoramic mountain views and first-floor vistas reaching the Mediterranean and the coast of Morocco, the setting is both serene and inspiring.

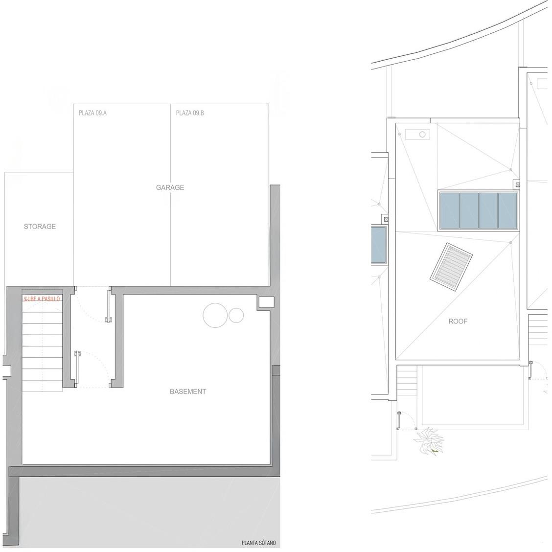
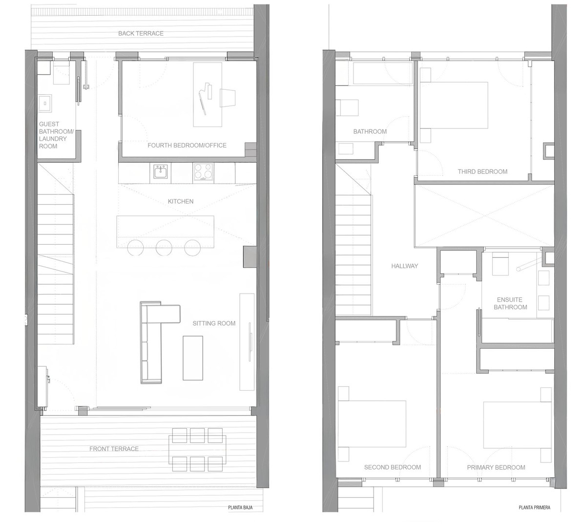
The property is distributed across three levels, with bright, open living spaces that make the most of natural light. The main floor features a contemporary kitchen enhanced by a skylight, opening onto a spacious living and dining area with direct access to private terraces. With four bedrooms and three bathrooms, all with natural light, the home is ideal for families, guests, or those seeking additional workspace. A generous multi-purpose basement connects directly to the underground parking, adding versatility and convenience.

Residents enjoy an exceptional range of private amenities within the community’s exclusive clubhouse. These include a large outdoor pool, an indoor heated pool, a fully equipped gym, a sauna, and beautifully maintained gardens. The clubhouse also features its own restaurant and a rooftop area reserved for residents.

Additional features include two private underground parking spaces and a storage room, ensuring practical day-to-day living.

Located just six minutes from the beach and a short drive from Estepona, San Pedro, Puerto Banús, and Marbella, the property offers easy access to shops, restaurants, and essential services—putting the best of the New Golden Mile within reach.

This townhouse represents an excellent opportunity for those seeking a modern home with outstanding communal facilities, whether as a permanent residence, holiday home, or investment.

Alternatives

1-7980e48d732b6fc85c14b43b94d2aa54.jpg

Te koop Herenhuis Costa Del Sol Estepona € 550.000,-

Price € 550.000,-
Plus d'information
1-7980e48d732b6fc85c14b43b94d2aa54.jpg

Te koop Herenhuis Costa Del Sol Estepona € 547.000,-

Price € 547.000,-
Plus d'information
1-7980e48d732b6fc85c14b43b94d2aa54.jpg

Te koop Herenhuis Costa Del Sol Benalmadena Costa € 545.000,-

Price € 545.000,-
Plus d'information
1-7980e48d732b6fc85c14b43b94d2aa54.jpg

Te koop Herenhuis Costa Del Sol Mijas € 499.000,-

Price € 499.000,-
Plus d'information
Disclaimer | Links
Casadelmar %lng_cookie_notice% %lng_close%
x